ManufacturedMulti-Family

Anthem The Sugar Run Duplex

Built by: Cavco Goshen

3D Home Tour

About this Home

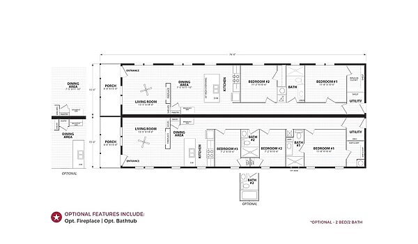
The Anthem / The Sugar Run Duplex built by Cavco is a multi-family manufactured home designed for flexibility and modern living. Each unit features 1,140 square feet, with the first half offering 3 bedrooms and 2 bathrooms, while the second half includes 2 bedrooms and 1 bathroom. This well-planned layout provides comfort, privacy, and efficiency for multiple households. The Sugar Run Duplex is a versatile housing solution with exceptional space and style.

Share this home

Details

  • 3 Bedrooms
  • 2.00 Bathrooms
  • 1050 Square Feet
  • 15’0″ x 76’0″

PHotos

Tours & Videos

Specifications

No specification data available
¿Hablas español?